Планировки

Описание проекта

Описание проекта

Проекты домов с мансардой охотно выбирают заказчики.

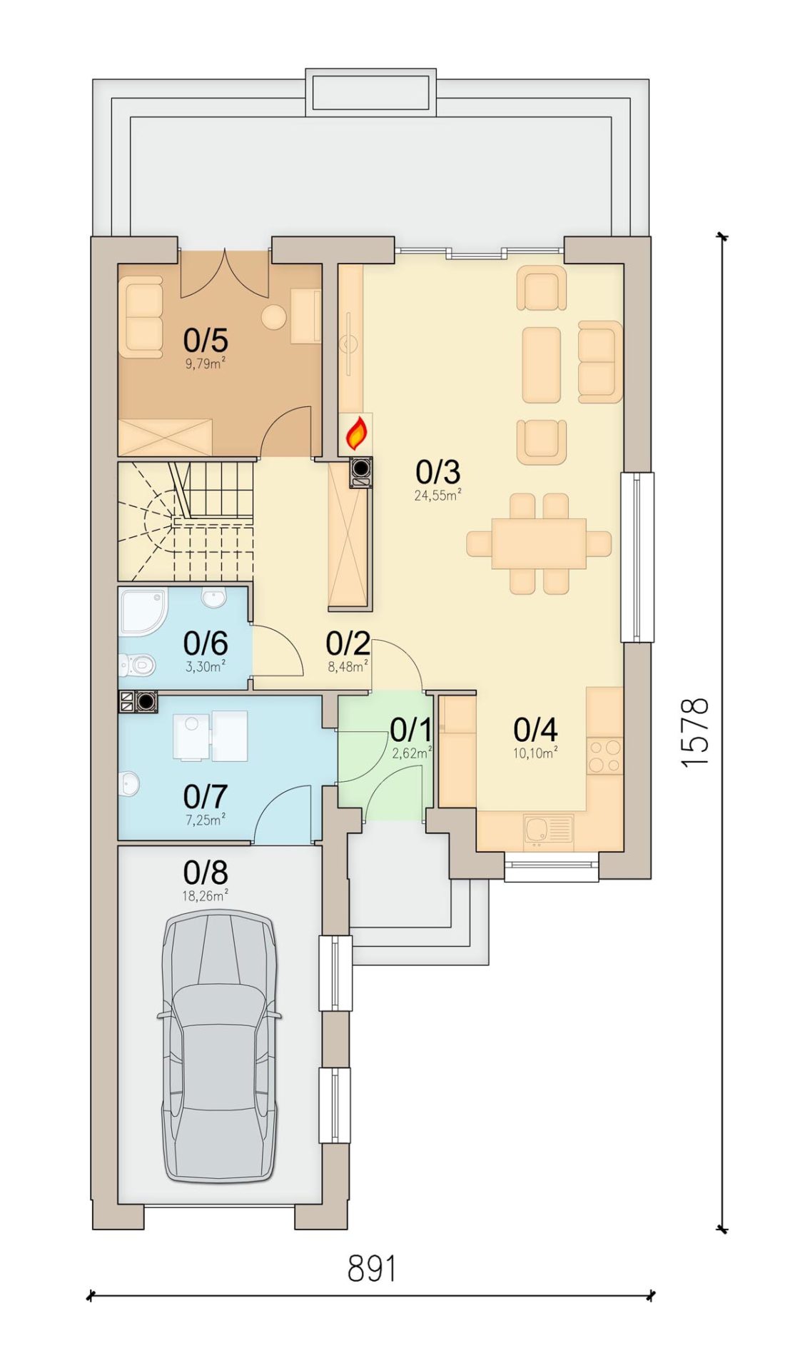
это проект дома на узкий участок. Благодаря небольшой ширины, дом можно построить на участке, у которого фасад имеет всего 16 м² длины. Несмотря этих ограничений, удалось спроектировать удобный функциональную планировку с просторным гостиной и кухней расположенную от фасада.

Простая форма в сочетании с натуральными материалами делает дом элегантным и создает впечатление тепла и уюта.

Благодаря хорошо организованному пространству дом будет очень удобен в использовании.

Большим преимуществом проекта есть открытая гостиная с местом на столовую и центрально размещенным камином. Что важно, на первом этаже предусмотрено, также, гостевую комнату, и дополнительную ванную, благодаря чему мансарда останется зоной исключительно для жильцов.

Дом имеет котельную на твердое топливо, отделенную от части жилой тамбуром. Дополнительно предусмотрена газовая установка для тех, кто хочет использовать газовое отопление.

На мансарде находятся две комфортные комнаты, спальня соединена с гардеробной, и большая ванная и прачечная.

Чтобы полностью использовать площадь мансарды под скатами крыши, предусмотрена высокая аттиковая стенка.

Создавая проект Лунго 2 не забыли также с вопросах финансовых.

Благодаря очень простой форме и конструкции дом недорогой и простой в строительстве.

А примененные энергоэффективные решения обеспечат низкие эксплуатационные расходы.

Проект можно найти в категории:

Ориентир бюджета

Стоимость строительства

Ориентировочная стоимость строительства. Итог зависит от региона, подрядчика, выбранных материалов, инженерных систем и состава работ.

Средняя цена, закрытый контур3 981 000 ₽
Средняя цена, с отделкой6 353 000 ₽

Вопросы по проекту

Можно ли адаптировать проект Лунго 2 под участок?

Да, параметры проекта можно обсудить с архитектором: посадку на участок, зеркалирование, конструктивные и инженерные изменения.

Что входит в консультацию по проекту?

Специалист уточнит состав семьи, участок, бюджет строительства и поможет подобрать ближайшие по параметрам проекты.

Похожие проекты

Abelia-widok-od-frontu-1.jpg 123 м2
2 этажа · терраса

Абелия

104 000 ₽

Проекты одноэтажных домов пользуются большой популярностью.

123 м2 2 эт. 1 сп. 0 с/у
Открыть проект
Aloes-5-widok-od-frontu-2-1-scaled.jpg 111 м2
2 этажа · терраса

Алоэ 5

91 000 ₽

это современный и удобный дом частный, спроектированный с учетом комфорта жильцов. Продуманная планировка помещений гарантирует функционал�

111 м2 2 эт. 1 сп. 0 с/у
Открыть проект
Amaretto-widok-od-frontu.jpg 121 м2
2 этажа

Амаретто

87 000 ₽

это интересная предложение небольшого дома частного с неординарной архитектуре. Благодаря функциональному планировке помещений, дом обеспе

121 м2 2 эт. 1 сп. 0 с/у
Открыть проект
awokado-widok-od-frontu.jpg 129 м2
2 этажа

Авокадо

87 000 ₽

это очень комфортный дом с эксплуатируемой мансардой, рассчитанный на 3–5 человек.

129 м2 2 эт. 1 сп. 0 с/у
Открыть проект
Помощник Archand На связи: подбор проекта, планировки, стоимость