Планировки

Описание проекта

Описание проекта

это небольшой очаровательный домик.

Несмотря на небольшие размеры, благодаря хорошо организованному пространству дом будет очень удобен в использовании.

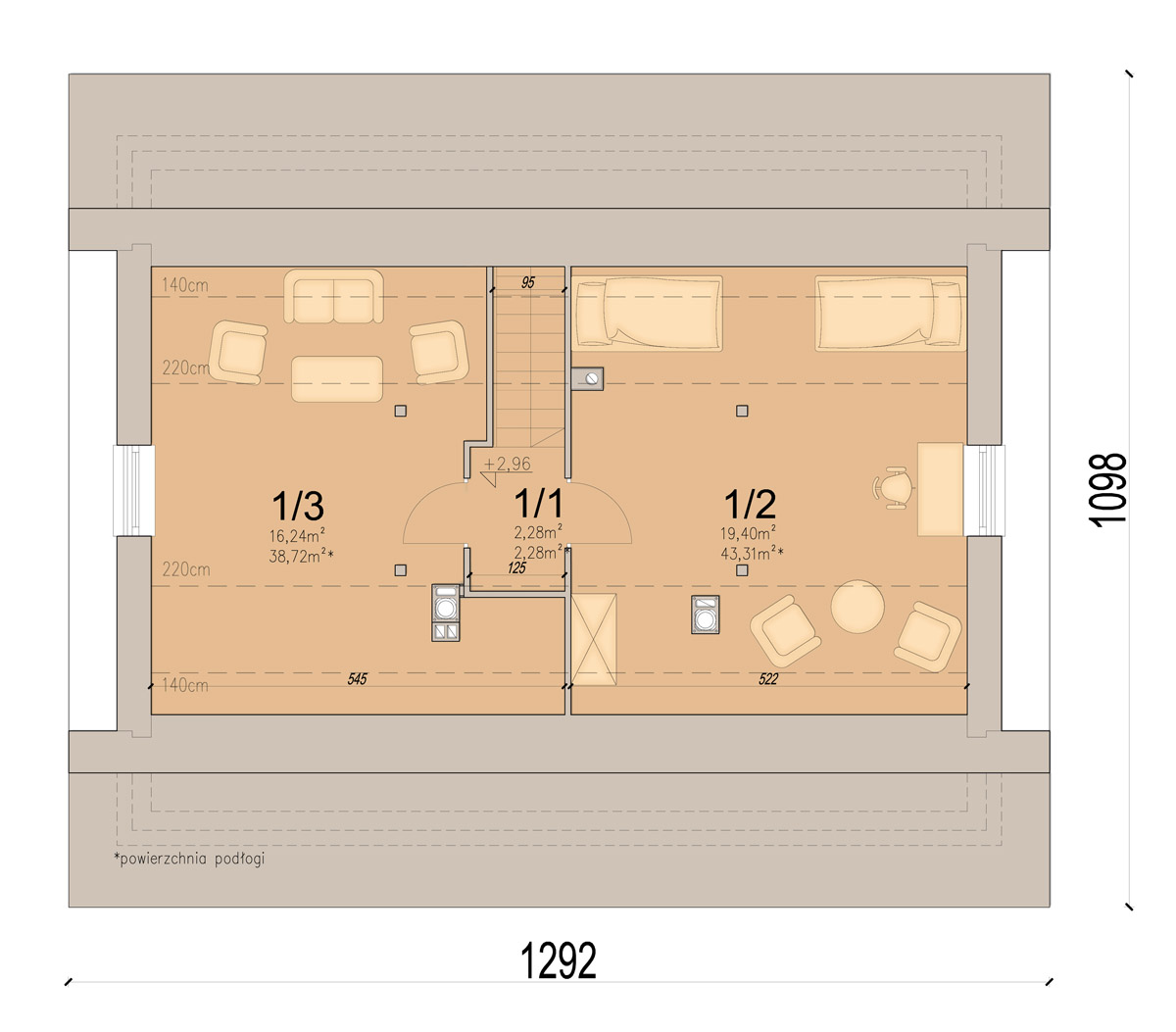
Несомненным преимуществом проекта является возможность легкого адаптирования мансарды на функцию жилую.

Дом был спроектированный в такой способ, чтобы без существенных изменений и затрат, можно было выделить на мансарде дополнительное комнаты, и ванную.

Преимуществом проекта есть большая открытая пространство дневная. В ней центр находится камин.

Дополнительно на первом этаже предусмотрено две большие комнаты и ванную.

В проекте предусмотрено котельные на твердое топливо, которая, что важно, отделена есть от части жилой тамбуром.

Простая форма и несложная конструкция, заметно упростят и ускорят строительство. Чтобы обеспечить низкие эксплуатационные расходы и не увеличивать стоимость строительства, в проекте применены энергоэффективные решения на экономически обоснованном уровне.

Проект можно найти в категории:

Ориентир бюджета

Стоимость строительства

Ориентировочная стоимость строительства. Итог зависит от региона, подрядчика, выбранных материалов, инженерных систем и состава работ.

Средняя цена, закрытый контур6 951 000 ₽
Средняя цена, с отделкой10 693 000 ₽
Минимальная цена, закрытый контур5 560 000 ₽
Минимальная цена, с отделкой8 554 000 ₽

Вопросы по проекту

Можно ли адаптировать проект Ирис 2 под участок?

Да, параметры проекта можно обсудить с архитектором: посадку на участок, зеркалирование, конструктивные и инженерные изменения.

Что входит в консультацию по проекту?

Специалист уточнит состав семьи, участок, бюджет строительства и поможет подобрать ближайшие по параметрам проекты.

Похожие проекты

Armonia-widok-od-frontu-1-scaled.jpg 76 м2
2 этажа

Армония

106 000 ₽

это проект дома в стиле современной амбарной архитектуры. Современный здание с двускатной, безсвесной крыши выделяет эффектную формой и эффе

76 м2 2 эт. 1 сп. 0 с/у
Открыть проект
Armonia-mini-widok-od-frontu.jpg 60 м2
2 этажа

Армония Мини это проект дома в стиле современной амбарной архитектуры. Здание с двускатной, безсвесной крыши выделяет эффектную формой и эфф�

60 м2 2 эт. 1 сп. 0 с/у
Открыть проект
Armonia-plus-widokod-ogrodu-2-scaled.jpg 90 м2
2 этажа

это современная дом-амбар с простой, элегантной форме. Здание с двускатной, безсвесной крышей привлекает внимание большими остеклениями от с�

90 м2 2 эт. 1 сп. 0 с/у
Открыть проект
Arnika-widok-od-frontu.jpg 80 м2
2 этажа

Арника

78 000 ₽

это небольшой уютный одноэтажный дом, который прекрасно вписывается в любое окружение, и при этом имеет свой оригинальный стиль. Благодаря оч

80 м2 2 эт. 1 сп. 0 с/у
Открыть проект
Помощник Archand На связи: подбор проекта, планировки, стоимость